Overview
- Features:
- March 24, 2026
- 2 Bedrooms
- 1 Bathrooms
- 138 m2
Description
Are you looking for a comfortable home with a pleasant outdoor space in a quiet neighborhood? This well-maintained property at Kaya Rofina 14 offers everything you need and is ready for immediate occupancy.
Layout and features
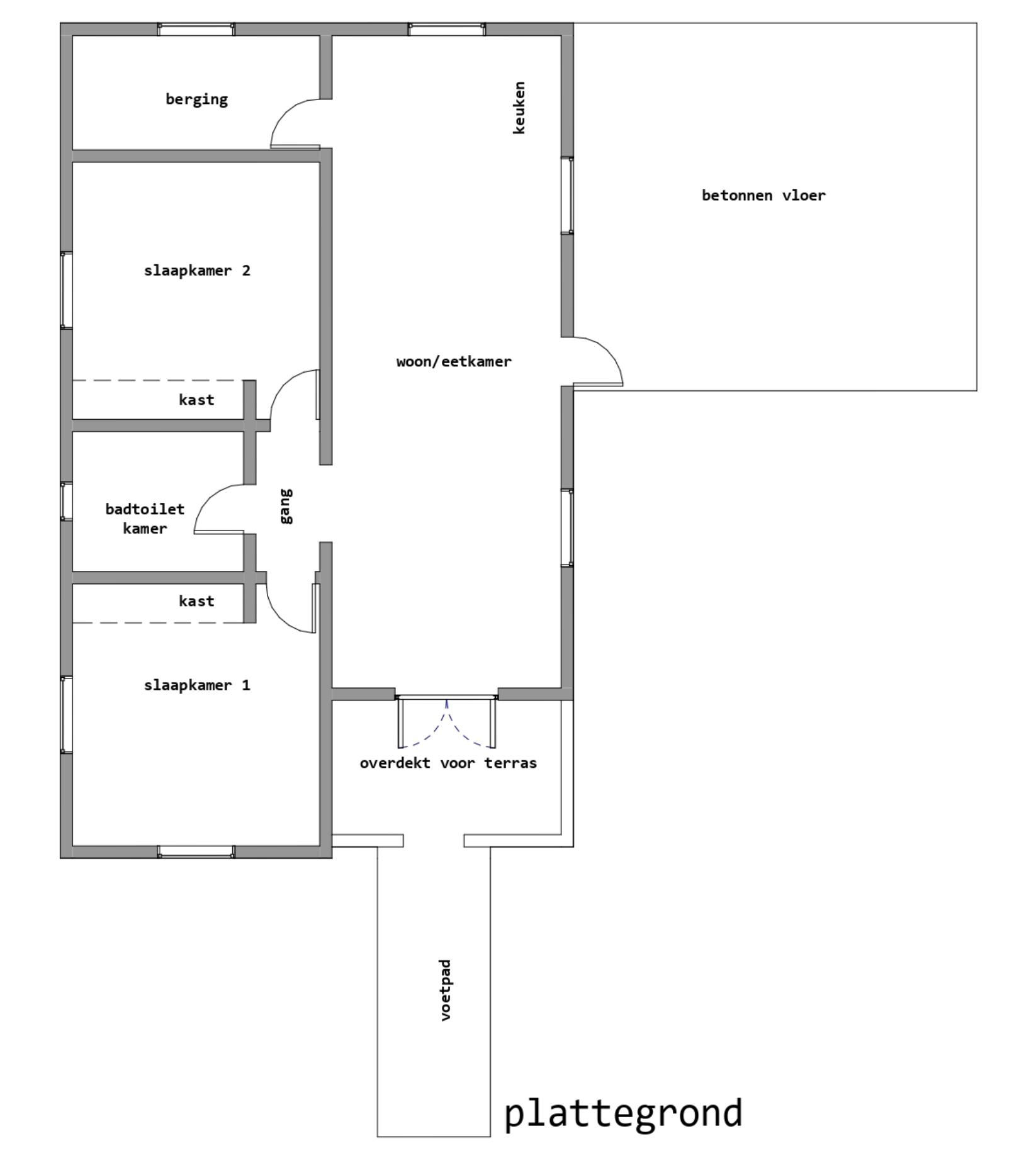
The home has a built-up area of 102 m², which refers to the interior living space of the house. In addition, there is a spacious 36 m² terrace, providing a generous outdoor extension of the living area. This combination offers a comfortable indoor layout along with plenty of space to enjoy outdoor living. The property features two bedrooms, both equipped with air conditioning, and one bathroom. The living and dining area is bright and welcoming, with an open kitchen that creates a practical and social layout. A small hallway connects the bedrooms and bathroom, while a convenient storage room is located near the kitchen.
From the living area, you have direct access to the terrace, making it ideal for relaxing or entertaining guests. The house is surrounded by a generous garden, fully fenced for privacy, and includes a fully covered front porch.
Outdoor space and privacy
The property offers ample outdoor space with a garden surrounding the home. The front boundary is secured with plastered concrete block walls, ensuring both privacy and security. There is a gate providing easy access, and plenty of space on the premises to park your car safely.
Location
Situated in a quiet and pleasant neighborhood on a paved road, this home combines peaceful living with convenient accessibility.
This property offers a great balance of comfort, functionality, and outdoor living, making it an ideal choice for those seeking a move-in-ready home.
Contact us today to schedule a viewing and experience this property for yourself.



















